top of page
MELABES
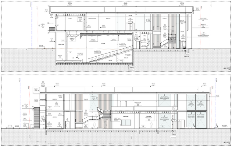
PGMR - The project is located in Petah Tikva and functions as a modern cultural center connecting diverse communities.
It features two main buildings with transparent curtain walls, linked by an open bridge that also
serves as a viewing platform.
Natural light enters through precise openings,
creating dynamic light and shadow.
The design follows a modern, minimalist style, combining wood, Corten steel, and exposed concret,
for a rich contrasting experience.
Public
Ha-Shofar St 11, Petah Tikva
June 2025
Photos by Lior Haritan

bottom of page













